一、型号意义
HYCF50-32-160A 中各字母含义说明如下:
HYCF型衬氟榴莲视频下载污,简称CQF该泵应用现代磁力学原理,利用永磁体实现无接触间接传动的一种新型化工泵,当电机带动外转子(即外磁钢)总成旋转时,通过磁场的作用磁力线穿过隔离套带动内转子(即内磁钢)总成和叶轮同步旋转,介质完全封闭在静止的隔离套内,从而达到无泄漏抽送介质的目的,彻底解决了机械传动泵的轴封泄漏,是全密封,无泄漏,无污染,高效节能的新型的工业泵。
该系列榴莲视频下载污是化工流程中杜绝跑,冒,滴,漏现象,消除环境污染,创造"无泄漏车间,无泄漏工厂”实现安全,文明生产的理想用泵。
1.无泄漏衬氟榴莲视频下载污是自主研发设计全密封,无泄漏,无污染,耐强酸碱的新型工业用泵。
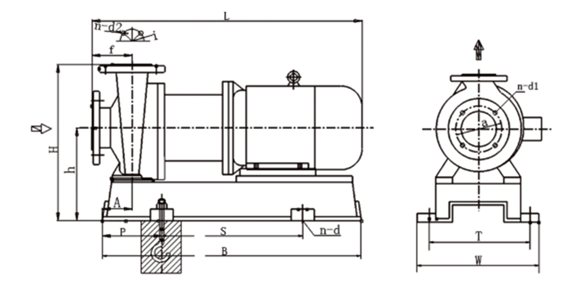
2.泵体采用铸铁内衬氟塑料(PTFE,FEP,PFA)整体烧结压制而成,内转子,泵盖叶轮,隔离套等过流部件采用金属镶件外包氟塑料整体烧结而成。
3.磁铁选用新型永磁体,具有良好的磁性,耐高温,不退磁。
4.轴套,滑动轴承采用高耐磨的碳化硅,石墨,四氟等材料。
5.HYCF榴莲视频下载污的设计不仅具有普通榴莲视频下载污的结构紧凑,外型美观,体积小,噪声低,运行可靠等优点,且过流部件全部采用目前世界上耐腐浊性能比较好的“塑料王”制造,可输送任意浓(强)度的酸,碱,氧化剂等氟蚀性质而毫不受损。
四、主要用途
产品广泛应用于石油,化工,制酸,制碱,冶炼,稀土,农药,染料,医药,造纸,电镀,酸洗,无线电,化成箔,科研机构,国防工业等行业输送任意浓度的酸性,碱性,油类,稀土贵重液体,毒性液体,挥发性的化学介质,特别是易燃,易漏,易爆液体的输送。




a、须 知
1、榴莲视频下载污严禁空运转,泵运行时的较小流量,应不小于额定流量的30%.
2、榴莲视频下载污严禁输送含颗粒的介质。
3、磁力驱动泵具有很强的磁场,对带有电子医疗设备或装置(如电子起搏器)的人员有不利的影响,该人群需远离。
b、安装
1、泵要安装并固定在稳定的基础上,不受其它机械震动的影响。
2、管道尽可能布置成直管,并尽量缩短管道长度,必须转弯处弯头弯曲半径应是管道3-5倍,角度尽可能大于90度。
3、进口管路弯头不应超过2处,总长不宜超过5米。
4、安装泵机时,与泵相连接的管道应进行清理,进出口管道应另设支撑,不得将管路重量支撑于泵上。
5、泵在吸上工况下使用时,泵的出口必须装出口阀门:泵在倒灌工况下使用时,泵的进出口都必须装阀门。泵的进口及出口尽量安装管道补偿器,以便于维修。
c、启动
1、开车前应先盘动外磁联轴节一圈以上,检查有无擦碰情况,运转轻松无阻滞现象方可使用。
2、吸上工况,将泵内灌满须输送的液体:倒灌工况,打开进口阀供给液源。
3、接通电源,检查泵的转向是否正确,将出口阀关闭,即可启动(即关阀启动),然后调节出口阀门,使泵达到所需的流量(压力)。
4、机组试运转3-6分钟,如无异常现象可投入运行。
d、运转
1、要经常检查泵和电机的温升情况,轴套承的温升不应大于40P,温度不大于90P,对于B级绝绿电机,环境温度为40纪时的较高温升为90P,允许温度为130P。
2、不能以进口阀调节泵流量,以免引起汽蚀。
3、当泵的装置扬程小于泵的额定扬程时,必须关小出口阀门,使流量达到额定值,若出口阀全开,则流量会大于额定值班,在此参数点运行,电机易过载,不安全。
4、在运转过程中,如发现有不正常声音或其它故障时,需立即停机检查,待排除故障后才能继续运转。
e、停机
1、停机时,先关闭出口阀门,然后再切断电源。
2、关闭进口阀门。
3、保持泵机外部及环境的清洁,用水冲洗时,应防止电机受潮,冲洗后应用布擦净泵机上的水迹。
4、泵如在室外,应采取防雨措施,以防电机受潮后烧毁。
5.停机后如环境温度低于输送介质凝固温度时,要放净泵内的液体,以防冻裂。
6、长期停机不用时,应切断电源,清洗泵内流道,用清水冲洗干净,尤其是密封部件要认真对待冲洗井将泵的进出口封闭好,妥善保管。
Copyright © 2021-2021 江苏榴莲视频在线播放泵业制造有限公司 版权所有 备案号:苏ICP备36979332号